Cox Martin Design have been the designers and project architects for 3 new-build care homes to date.
We've achieved planning permission for new-build care homes in sensitive rural areas, as well as on tight urban sites.

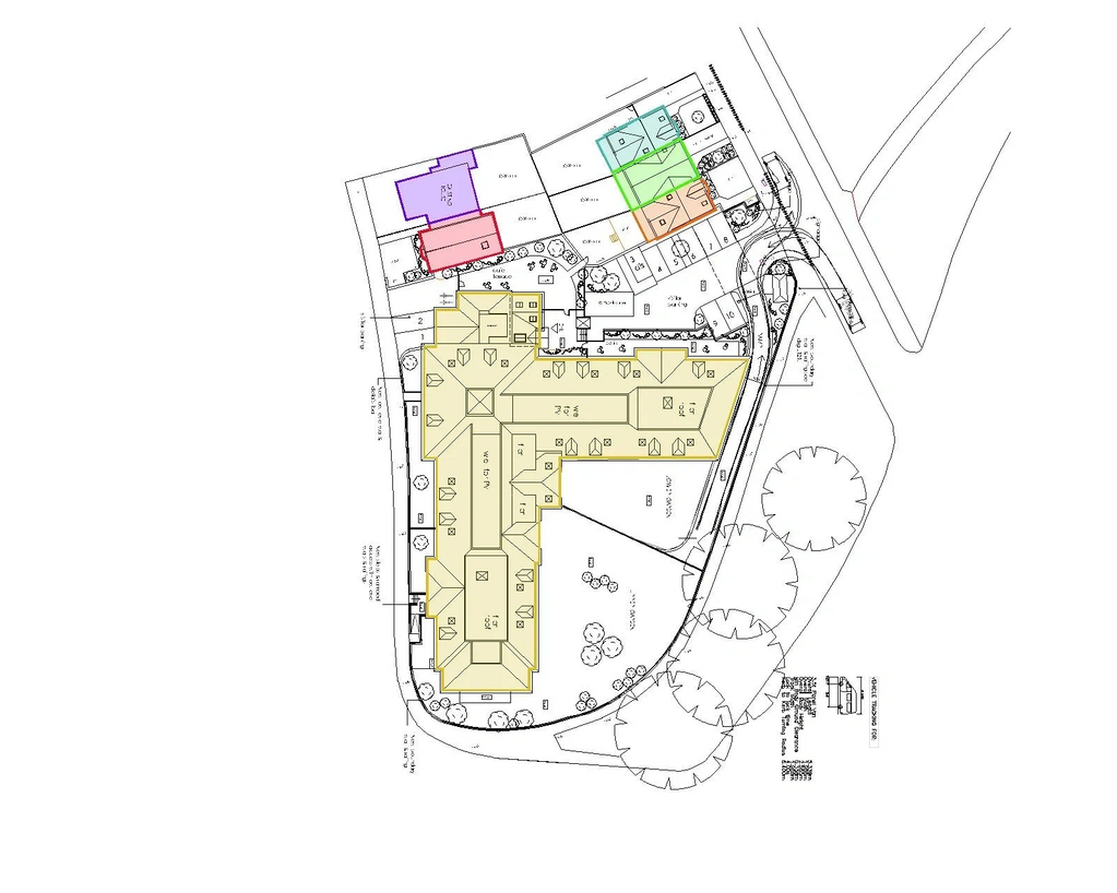
SHREWSBURY COURT- on a sloping site, the existing buildings ranged in age and style from the later part of the 20th century to 1990’s.
A 3D model was used to investigate if some, or all of the existing buildings could be retained. Once it became clear that this wasn't , we then looked at new build options that worked with the site's constraints.

The final scheme incorporated a 78 bed care home & 5 townhouses.
The new dwellings sit adjacent to existing housing at the lowest part of the site.

With a level change of 6m across the length of the site, simple 'white card' massing models were used to help explain how the building worked with the site contours and surrounding road levels.

Knowledge and best practice in designing for people living with dementia, informs all our care home designs. This knowledge is further strengthened by personal experience of having family members who have lived with the condition and been care home residents.
The construction of thi home is ongoing & is expected to be completed in 2026

Dorset:
Rowan Tree, Shorts Green Lane, Motcombe Shaftesbury SP7 9PA
Wiltshire:
Heywood House Business Centre, Park Lane, Westbury BA13 4NA
Email: office@coxmartindesign.co.uk
Tel 07889 564050
Company Number: 08841680
We use cookies to analyze website traffic and optimize your website experience. By accepting our use of cookies, your data will be aggregated with all other user data.