We are experienced in working with community groups to create community architecture. These are examples of two such projects in Dorset. One for a purpose built village shop, and the other for the fit-out of a new village hall.

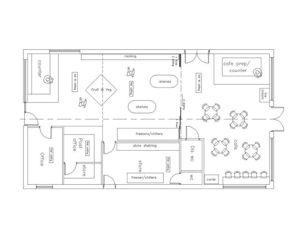
Working with a local Village Community shop we designed a new building which would allow them to relocate and expand their offering to the community.
With the shop and 'back of house' areas to the front, the rear accommodates a self-contained cafe that can spill out to the park in good weather.
Internal sliding screens allow the cafe to be separated off at night, so it can be hired out by groups or individuals.
The full height ceiling over the cafe area, and large windows overlooking the park make it an attractive space to be in.
Dorset: Rowan Tree, Shorts Green Lane Motcombe Shaftesbury SP7 9PA
Somerset:The Old Church School, Butts Hill, Frome ,Somerset BA11 1HR
Email: office@coxmartindesign.co.uk Tel 07889 564050
Company Number: 08841680
copyright: 2023 Cox Martin Design
We use cookies to analyze website traffic and optimize your website experience. By accepting our use of cookies, your data will be aggregated with all other user data.